情報更新日:2024年04月03日/広告有効期限:なし
表示閲覧回数(過去30日間):170
お急ぎの方はお電話からお気軽にどうぞ!
018-896-1511 営業時間 / 10:00〜17:00 定休日 / 毎週水曜日
>物件詳細情報
| 基本情報 | |
|---|---|
| 物件番号 | 10007805105 |
| 店舗形態 | 店舗, 事務所 |
| オススメ業種 | 事務所, ショールーム, サービス業, 軽飲食 |
| 物件名 | 八橋テナント |
| 物件の状態 | 空き |
| 引越し時期 | 相談 |
| 契約形態と期間 | |
| 所在地・交通 | |
|---|---|
| 所在地 | 秋田県秋田市八橋本町3-1-20 |
| 交 通1 | 奥羽本線秋田駅 徒歩40分 |
| 交 通2 | - |
| 賃料 | |
|---|---|
| 賃 料 | 100,000円(税込) |
| 敷 金 |
200,000円 |
| 共益費・管理費 | 10,000円(税込) |
| その他 | |
|---|---|
| 備考 | |
| 建物 | |
|---|---|
| 建物構造 | 鉄骨鉄筋コンクリート造 |
| 建物階建て |
地上1階 |
| 施工年月 | 1976(昭和51)年 11月 |
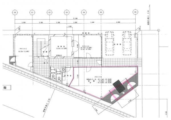
| 募集物件の階数 | 地上 1階 B号室 |
| 契約面積 | 51.61m2(15.61坪) |
| 用途地域 | 1種住居 |
| 駐車場 | |
|---|---|
| 状 況 | 空有無料 |
| 取引情報 | |
|---|---|
| 取引態様 | 専任 |
| 客付 | 不可 |
この物件をチェックした人はこんな物件も見ています
- 会議室あり

秋田県秋田市山王5-9-11
34.75m2(10.51坪)
88,000円(税込)
- 広々駐車場、消雪完備。事務所に最適です。

秋田県大仙市下深井
67.75m2(20.49坪)
99,000円(税込)
- 共用部にコワーキングスペースあり。中庭休憩所のテラス席でのお仕事も可能です。

秋田県秋田市中通6-6-15
77.22m2(23.36坪)
148,500円(税込)
- 1区画に付き、駐車場3台~6台使用できます。フリー休憩室があります。

秋田県横手市横手町-大関越80
28m2(8.47坪)
55,902円(税込)
- ガレージ付き!エアコン、給湯器新規交換済み!

秋田県横手市安田
76m2(22.99坪)
132,000円(税込)
今日チェックした物件
お急ぎの方はお電話からお気軽にどうぞ!
018-896-1511 営業時間 / 10:00〜17:00 定休日 / 毎週水曜日


018-896-1511



















018-896-1511